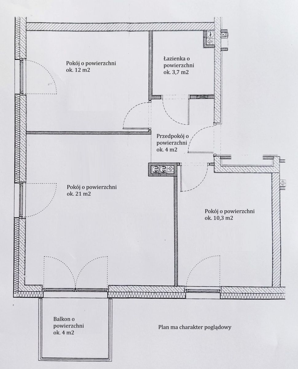
Oferuję do sprzedaży atrakcyjne mieszkanie znajdujące się w budynku z 2017 roku przy ulicy Batalionów Chłopskich. Lokal ma powierzchnię 50,5 m2 i składa się z pokoju dziennego z aneksem kuchennym o pow. ok. 21 m2, dwóch sypialni o pow. ok. 10,3 i 12 m2, łazienki z wc o pow. ok 3,7 m2 oraz przedpokoju o pow. 4 m2. 
Z dużego pokoju można wyjść na balkon o pow. ok. 4 m2 (ekspozycja południowa). Mieszkanie jest słoneczne. Okna dużego pokoju wychodzą na zachód i południe. Jedna z sypialni ma ekspozycję południową a druga zachodnią. 
W okolicy znajdują się liczne sklepy (w tym dyskonty spożywcze) a także punkty usługowe. W okolicy znajdują się również przedszkola i szkoły publiczne. Lokalizacja zapewnia sprawną komunikację z centrum miasta. Stacja Metra (M2) "Chrzanów" zostanie otwarta dla pasażerów najprawdopodobniej w drugiej połowie 2026 roku. 
- Mieszkanie jest częściowo umeblowane
- Opłaty do wspólnoty wynoszą około - 820 pln.
- Stanowisko w garażu płatne dodatkowo 45,000 pln
- Komórka lokatorska płatne dodatkowo 15,000 pln
Zapraszam na prezentację.
 
                             
                                     
                                    