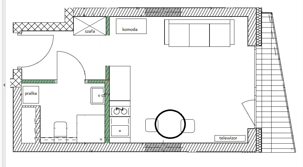
Mieszkanie na wynajem, Warszawa Wola, Nowolipki
- Powierzchnia:44 m2
- Pokoje:2
- Piętro:6 z 6
- Rok budowy:1950
- Numer oferty:751353
Jesteśmy nowoczesnym i kreatywnym biurem funkcjonującym na rynku w obszarze szeroko pojętego pośrednictwa w obrocie nieruchomościami. Pomożemy Ci kupić lub sprzedać mieszkanie, dom, wynająć lokal na Twoją działalność lub na cele mieszkalne. Zajmujemy się m. in obsługą kredytów hipotecznych, nadzorujemy adaptacje i remonty nieruchomości przeznaczonych do zamieszkania lub sprzedaży. Zarządzamy nieruchomościami przeznaczonymi pod wynajem. W ramach Umowy o Zarządzanie, przejmujemy na siebie wszystkie obowiązki związane z posiadaniem i wynajmowaniem nieruchomości w Warszawie. Znajdziemy także odpowiedzialnych najemców na nieruchomość, którą posiadasz (udzielamy gwarancji). Nie działamy rutynowo. Każdego Klienta traktujemy indywidualnie, starając się dokładnie poznać jego potrzeby, aby jak najlepiej dostosować nasze działania do stawianych wymagań. Wystarczy się z nami skontaktować.
Zapraszamy
Mieszkanie na wynajem, Warszawa Wola, Nowolipki
Mieszkanie na sprzedaż, Warszawa Wola, Wolska
Mieszkanie na sprzedaż, Warszawa Ochota Filtry, Józefa Mianowskiego
Działka (Budowlana) na sprzedaż, Żebrówka
Mieszkanie na sprzedaż, Warszawa Targówek, Obwodowa
Mieszkanie na sprzedaż, Warszawa Wola, Wolska